BIELBET

KORYTO

STUDNIA

Przekrój techniczny:

KORYTO

STUDNIA

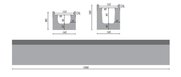
Odwodnienia liniowe z betonu 145

Rodzaj pokrywy: stal ocynkowana, tworzywo sztuczne, żeliwo szare Klasa obciążenia: A15, B125, C250

Opis produktu:

Odwodnienia liniowe betonowe wykonane są z tradycyjnego betonu klasy C35/45 o wysokich parametrach wytrzymałościowych. W zależności od typu kanału posiadają wzmacniane ocynkowane krawędzie zabezpieczające wzdłuż pokrywy.

Główne cechy odwodnień liniowych betonowych:

  • kanały wykonane z wysokiej jakości betonu klasy C35/45
  • miejsca podparcia pokryw wzmocnione listwą stalową lub ocynkowaną
  • pokrywy przykręcane
  • kanały zbrojone konstrukcją zbrojeniową
  • gładka powierzchnia zapewnia szybki przepływ wody
  • prawidłowy montaż gwarantuje dużą wytrzymałość na obciążenia
  • występują w klasach obciążenia od A15 do C250

Akcesoria dodatkowe:

  • systemowe studzienki zbiorcze
  • zakończenia kanału pełne
  • zakończenia kanału z króćcem Ø110

Zastosowanie: ścieżki pieszych i rowerzystów, tereny budownictwa mieszkalnego, ogrody, tarasy, wejścia do budynków, wjazdy do garaży, parkingi dla samochodów osobowych i ciężarowych, place zakładowe, hale produkcyjne, stacje paliw.

Szeroka gama odwodnień betonowych umożliwia właściwy dobór odpowiednich kanałów do miejsca zabudowy oraz ich przeznaczenia.

Dostępne opcje:

KORYTA

Klasa
obciążenia
Rodzaj pokrywy Zdjęcie poglądowe Wymiary
(dł. x szer. x wys.)
Kod
produktu
Certyfikat Karta
katalogowa
Waga kanału
z pokrywą (kg)
Ilość szt
na palecie
Stal ocynkowana
(1000x145x90mm)
0236 Załączniki Załączniki 16,5 30
(1000x145x160mm)
0018 Załączniki Załączniki 29,5 20
Tworzywo sztuczne
(1000x145x90mm)
0329A Załączniki Załączniki 16,5 30
(1000x145x160mm)
0234A Załączniki Załączniki 29,5 20
Tworzywo sztuczne
(1000x145x90mm)
0333 Załączniki Załączniki 17 30
(1000x145x160mm)
0273 Załączniki Załączniki 30 20
Żeliwo szare
(1000x145x90mm)
0254 Załączniki Załączniki 23 30
(1000x145x160mm)
0188 Załączniki Załączniki 36 20
Żeliwo szare
(1000x145x90mm)
0238 Załączniki Załączniki 24,50 30
(1000x145x160mm)
0030 Załączniki Załączniki 37,50 20
Tworzywo sztuczne- szczelinowa niska
(1000x145x90mm)
0196 Załączniki Załączniki 16,50 20
(1000x145x160mm)
0197 Załączniki Załączniki 29,50 20
Tworzywo sztuczne- szczelinowa wysoka
(1000x145x90mm)
0196 Załączniki Załączniki 16,50 20
(1000x145x160mm)
0197 Załączniki Załączniki 29,50 20


STUDNIE

Klasa
obciążenia
Rodzaj pokrywy Zdjęcie poglądowe Wymiary
(dł. x szer. x wys.)
Kod
produktu
Certyfikat Karta
katalogowa
Waga kanału
z pokrywą (kg)
Ilość szt
na palecie
Stal ocynkowana
(333x145x450mm) H9
0671 Załączniki Załączniki 32 16
(333x145x450mm) H16
0068 Załączniki Załączniki 31 16
Tworzywo sztuczne
(333x145x450mm) H9
0672A Załączniki Załączniki 32 16
(333x145x450mm) H16
0235A Załączniki Załączniki 31 16
Tworzywo sztuczne
(333x145x450mm) H9
0677 Załączniki Załączniki 32 16
(333x145x450mm) H16
0655 Załączniki Załączniki 31 16
Żeliwo szare
(333x145x450mm) H9
0676 Załączniki Załączniki 34,00 16
(333x145x450mm) H16
0259 Załączniki Załączniki 33,00 16
Żeliwo szare
(333x145x450mm) H9
0342 Załączniki Załączniki 35,00 16
(333x145x450mm) H16
0053 Załączniki Załączniki 34,00 16
Tworzywo sztuczne- szczelinowa niska
(333x145x450mm) H9
0688 Załączniki Załączniki 32,00 16
(333x145x450mm) H16
0636 Załączniki Załączniki 31,00 16
Tworzywo sztuczne- szczelinowa wysoka
(333x145x450mm) H9
1199 Załączniki Załączniki 32,00 16
(333x145x450mm) H16
1201 Załączniki Załączniki 31,00 16

Akcesoria:

Nazwa Zdjęcie poglądowe Kod produktu Jedn. miary
Zakończenie kanału
pełne
0116 szt
Zakończenie kanału z króćcem  

 

  • 145x90mm ø75
  • 0876
szt
  • 145x160mm ø110
  • 0454
szt